





















Montalcini Laboratory Hub
INMI Lazzaro Spallanzani Rome
Competition Third Prize
2025
Montalcini Laboratory Hub
INMI Lazzaro Spallanzani Rome
Competition Third Prize
2025
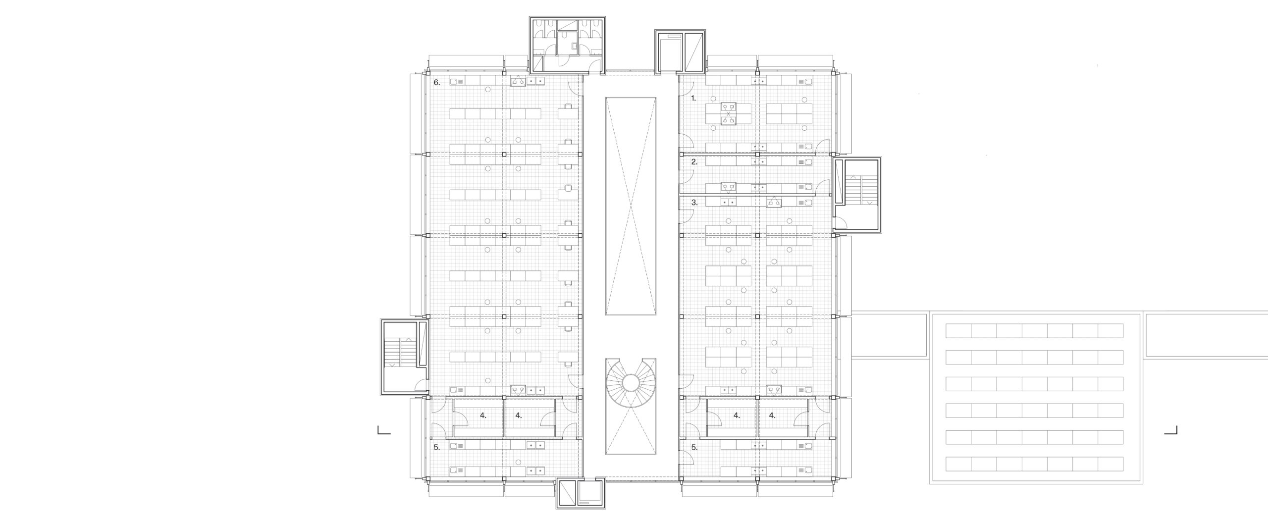
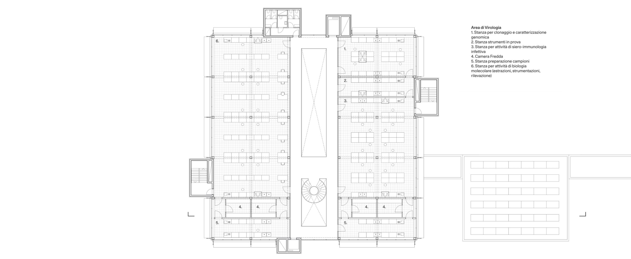
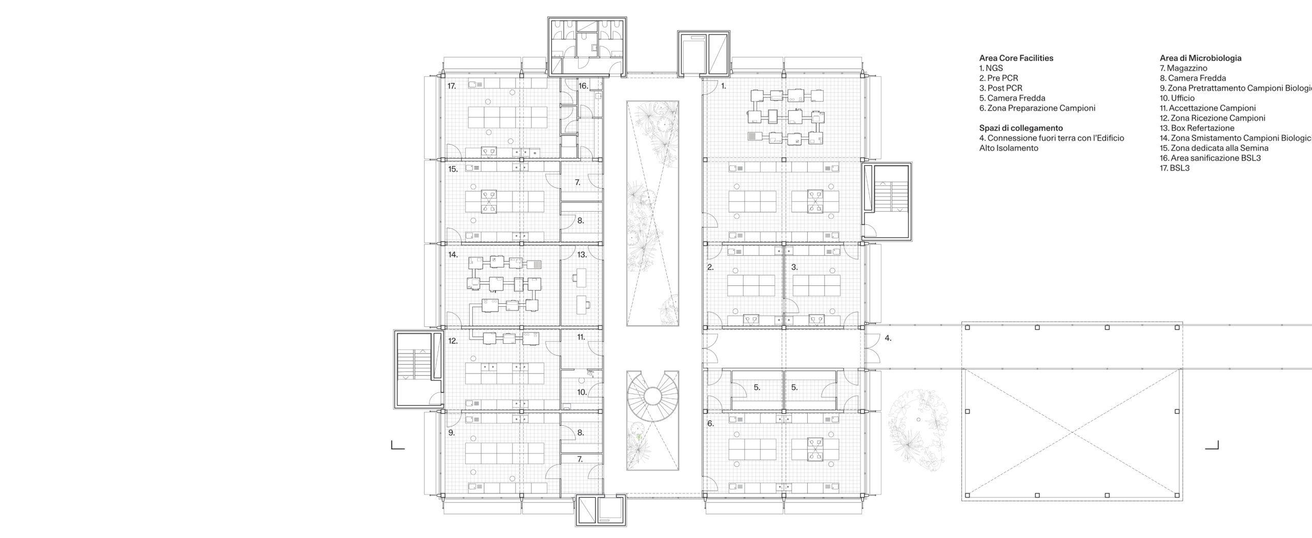
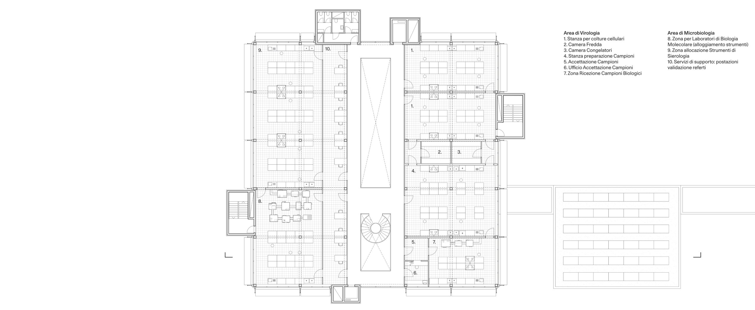
The new Rita Levi Montalcini Laboratory at the Spallanzani Institute is both a highly specialized research facility and a place of knowledge exchange. The design balances the technical demands of advanced virology and microbiology laboratories with the creation of open, flexible spaces that foster collaboration and public engagement.
At the heart of the project is a double-height central atrium, flooded with natural light and crossed by suspended walkways and helical staircases. This space acts as a relational hub, connecting different laboratories while encouraging informal interactions between researchers and disciplines. The adjacent multipurpose pavilion further extends the building’s reach, accommodating conferences, exhibitions, and events, and bridging the gap between specialized science and the broader community.
The layout separates public and technical areas while maintaining a strong visual and functional connection, allowing laboratories to operate efficiently yet remain adaptable. Sustainability and biophilic design guide the building’s form, with integrated greenery, solar panels, and natural ventilation reducing environmental impact. The project transforms the laboratory into a dynamic, relational architecture—where science is visible, shared, and lived.
The new Rita Levi Montalcini Laboratory at the Spallanzani Institute is both a highly specialized research facility and a place of knowledge exchange. The design balances the technical demands of advanced virology and microbiology laboratories with the creation of open, flexible spaces that foster collaboration and public engagement.
At the heart of the project is a double-height central atrium, flooded with natural light and crossed by suspended walkways and helical staircases. This space acts as a relational hub, connecting different laboratories while encouraging informal interactions between researchers and disciplines. The adjacent multipurpose pavilion further extends the building’s reach, accommodating conferences, exhibitions, and events, and bridging the gap between specialized science and the broader community.
The layout separates public and technical areas while maintaining a strong visual and functional connection, allowing laboratories to operate efficiently yet remain adaptable. Sustainability and biophilic design guide the building’s form, with integrated greenery, solar panels, and natural ventilation reducing environmental impact. The project transforms the laboratory into a dynamic, relational architecture—where science is visible, shared, and lived.
Data
Category Competition
Status Third Prize
Year 2025
Client INMI Lazzaro Spallanzani
Size 4.154 mq
Budget 9.6000.000 €
Category Competition
Status Third Prize
Year 2025
Client INMI Lazzaro Spallanzani
Size 4.154 mq
Budget 9.6000.000 €
With
Paolo Migliori (Motoproprio)
Margherita De Angelis
Sinergo Spa